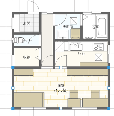
2: 2022/10/29(土) 22:55:33.551 ID:U52jlylU0NIKU
トイレは和式の方がコスパが良い
3: 2022/10/29(土) 22:55:35.049 ID:RnHtJ31l0NIKU
お前の生活空間玄関だけじゃん
4: 2022/10/29(土) 22:55:48.348 ID:jmLql72y0NIKU
鬼門に水回りはダメじゃなかった?
5: 2022/10/29(土) 22:55:50.850 ID:FmZXauyB0NIKU
トイレの場所が悪いなこれマジ
6: 2022/10/29(土) 22:56:05.043 ID:MnAgNDa50NIKU
まあまあ良いな
7: 2022/10/29(土) 22:56:53.964 ID:NasD75e+0NIKU
玄関から入れないのがジワる
8: 2022/10/29(土) 22:57:15.123 ID:tic3J2Qu0NIKU
一人暮らしに大事なのは間取りより上と横の騒音なんだよなぁ
とかに上が気になる
とかに上が気になる
9: 2022/10/29(土) 22:57:30.494 ID:BNXTy4d20NIKU
今気づいたけど玄関と廊下にドアつけ忘れてた
10: 2022/10/29(土) 22:58:42.308 ID:+h0awxh+0NIKU
限界から廊下に行けないのか
台所あんまり閉じ込めたら夏地獄だぞ
台所あんまり閉じ込めたら夏地獄だぞ
11: 2022/10/29(土) 22:59:04.961 ID:zCziyvJL0NIKU
玄関の意味の無さに草
12: 2022/10/29(土) 22:59:11.811 ID:El9LiRSX0NIKU
もうちょい収納は欲しいかもしれん
13: 2022/10/29(土) 22:59:27.071 ID:i8jN/w730NIKU
廊下が長くて無駄だし暗い
キッチンも暗い
キッチンが玄関から遠すぎる
基本的に採光と導線を全く考えられてないから一から作り直しかな
キッチンも暗い
キッチンが玄関から遠すぎる
基本的に採光と導線を全く考えられてないから一から作り直しかな
14: 2022/10/29(土) 22:59:31.628 ID:XamLYbk70NIKU
家にはいれない
15: 2022/10/29(土) 22:59:58.166 ID:+h0awxh+0NIKU
キッチンの左の壁取って
下の洋間の入り口を2つのスライドドアにしたら?
下の洋間の入り口を2つのスライドドアにしたら?
52: 2022/10/29(土) 23:19:14.789 ID:qpl5aw9t0NIKU
>>15
たぶんこの2つのドアは開けっ放しになるので同じ感想
たぶんこの2つのドアは開けっ放しになるので同じ感想








26
が
しました